• +7 (915) 499-15-15
  • info@stroifinans-d.ru
  • Пон - Суб: 09.00 - 18.00 (воскр. до 17.00)

ОПИСАНИЕ

Стоимость 1-го этапа: 3 601 900 рублей

Второй этап - внутренняя отделка. Его стоимость зависит от применяемых материалов и объема работ.

Стеновой материал: каркасные стены толщиной 210 мм.

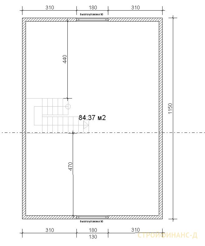
Размер (по краям): 8,0х11,5 м.

Стоимость строительства (под ключ): 3601900 рублей.

  • г.Дмитров,
    ул. Профессиональная, 4

О компании

Проектирование и строительство домов и бань под ключ с 2001 года.

+7 (915) 499-15-15
+7 (985) 191-15-15

Наши услуги
  • Строительство домов
  • Строительство бань
  • Проектирование
  • Доставка
  • Обслуживание
  • Консультации
© 2001-2019. Стройфинанс-Д. Строительство деревянных домов под ключ в Дмитрове и Северном Подмосковье.